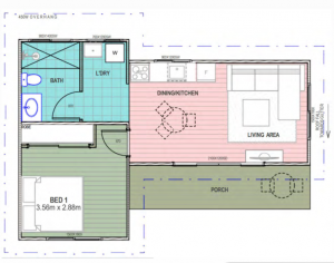
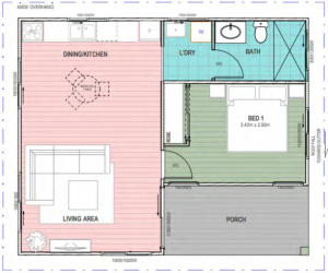
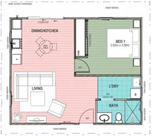
1 Bedroom Collection
Designed for Comfort, Built for Everyday Living
All plans are fully customisable to suit your block, site constraints and brief.
Created for homeowners and investors seeking the perfect balance of independence and practicality. Our 1-Bedroom Collection blends style, comfort, and everyday function. Each layout is designed to maximise space, light, and liveability, offering an elegant standalone retreat or a smart investment opportunity.
From concept to completion, ACT Studios & Granny Flats handles every step – design, approvals, and construction – ensuring a seamless experience and a home that adds both utility and long-term value to your property.







