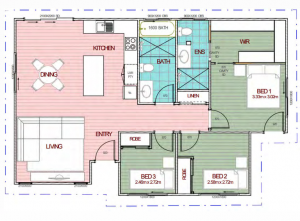
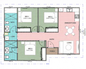
3 Bedroom Collection
Ideal for Families & Investors
Our granny flat designs are adaptable to fit the layout, council requirements, and personal brief.
Our 3-Bedroom Collection blends thoughtful architecture with comfort and functionality, perfect for growing families, hosting guests, or securing long-term returns. Every layout is fully customisable to your block and lifestyle, combining smart space use with open, welcoming interiors.
From concept to completion, ACT Studios & Granny Flats manages the full journey, from design and approvals through to construction. Ensuring your build is smooth, transparent, and stress-free.
Whether expanding for family or investing for the future, each 3-Bedroom design adds lasting value and flexibility.



















