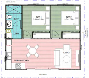
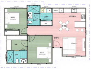
2 Bedroom Collection
Designed for Families & Investors
Every plan can be modified to suit your property, addressing any site challenges or constraints.
Created for modern Australian lifestyles, our 2-Bedroom Collection brings together thoughtful design, comfort, and functionality, ideal for growing families, guests, or investment returns. Every plan is customisable to your block and lifestyle, blending smart use of space with open, welcoming interiors.
From concept to completion, we manage the entire process, design, approvals, and construction, making the build simple, transparent, and stress-free.
Whether you’re building for family, flexibility, or future income, each design adds both utility and long-term value to your property.















